25
$149,000 Sale
Listed 1 day
112 - 449 ISLAND VIEW ROAD
· 2
· 1.0
· 1
· 0 - 699
Key Facts
Key facts for 112 - 449 ISLAND VIEW ROAD
Property Type
Other, Other
Parking
Garage: No, 1 parking
MLS #
X12446783
Size
0 - 699 sqft
Basement
-
Listed on
-
Lot size
-
Tax
-
Days on Market
-
Year Built
-
Maintenance Fee
-
Description
Charming Old Fashion Waterfront Cottage In Prime Rice Lake Resort On 21 Years Less One Day Land Lease. This fully furnished 2-bedroom, 1-bathroom cottage is located on one of the most desirable lots in Alpine Resort, offering stunning sunset views and a true old-fashioned cottage feel. The open-conc...ept layout creates a spacious yet cozy atmosphere, perfect for relaxing or entertaining. Enjoy the outdoors on your large private deck, ideal for BBQs and evening unwinding. (1) Private boat slip is included, perfect for fishing trips and boating adventures with the family. Amenities Include, Clubhouse, Swimming pool, Playground, Volleyball court, Game room, Laundry facilities, And much more! An affordable and low-maintenance way to enjoy waterfront living, this seasonal-cottage is from (May 1st - October 31st) , Monthly fee is $583.33, includes property taxes, heat, hydro, electricity. Cottage living is ideal for families, retirees, or anyone seeking a tranquil escape on beautiful Rice Lake. Don't miss this rare opportunity!! (id:10452)
Similar Properties (No results)
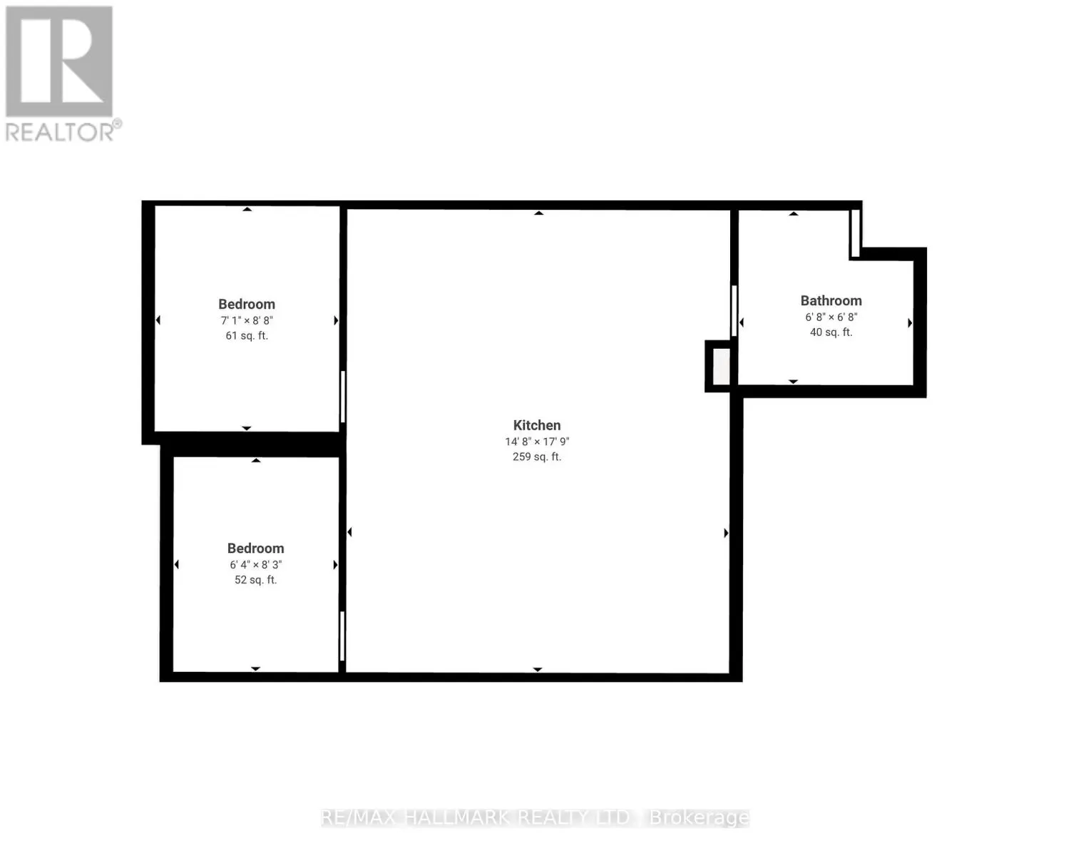
Room Types
Bedroom 2
-
Dimensions 1.93 m x 1.93 m
40.09 sqft
Kitchen
-
Dimensions 4.48 m x 5.41 m
260.88 sqft
Living room
-
Dimensions 4.48 m x 5.41 m
260.88 sqft
Listing courtesy of: RE/MAX HALLMARK REALTY LTD.
This REALTOR.ca listing content is owned and licensed by REALTOR® members of The Canadian Real Estate Association.