3
$20 Rent
Listed 1 hour
1 - 25 CHURCH STREET W
· 0
· 0.0
· 0
· 5383
Key Facts
Key facts for 1 - 25 CHURCH STREET W
Property Type
Commercial
Parking
Garage: No, 0 parking
MLS #
X12450384
Size
5383 sqft
Basement
-
Listed on
-
Lot size
-
Tax
-
Days on Market
-
Year Built
-
Maintenance Fee
-
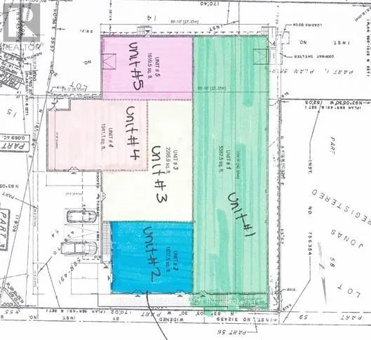
Description
Prime Commercial Lease Opportunity in Elmira An exciting opportunity is available in one of Elmiras most visible and high-traffic locations. This commercial property, zoned C1 for maximum flexibility, is currently undergoing modern renovations that will transform the space into a fresh and contempor...ary environment. The upgrades are designed to enhance both the interior and exterior, creating an inviting setting for retail, office, restaurant, fitness, medical, and a wide range of professional uses. A key advantage of this property is that it offers multiple unit sizes and configurations, making it adaptable to businesses both large and small. Its excellent street exposure provides outstanding visibility, while the thriving commercial corridor ensures consistent traffic and a supportive business environment. Leasing now allows tenants to secure space in this prime location as the renovations progress, with the opportunity to select a size and layout best suited to their needs. Contact us today for full leasing details and information on the spaces currently available. (id:10452)
Similar Properties (No results)
Listing courtesy of: RE/MAX TWIN CITY REALTY INC.
This REALTOR.ca listing content is owned and licensed by REALTOR® members of The Canadian Real Estate Association.